

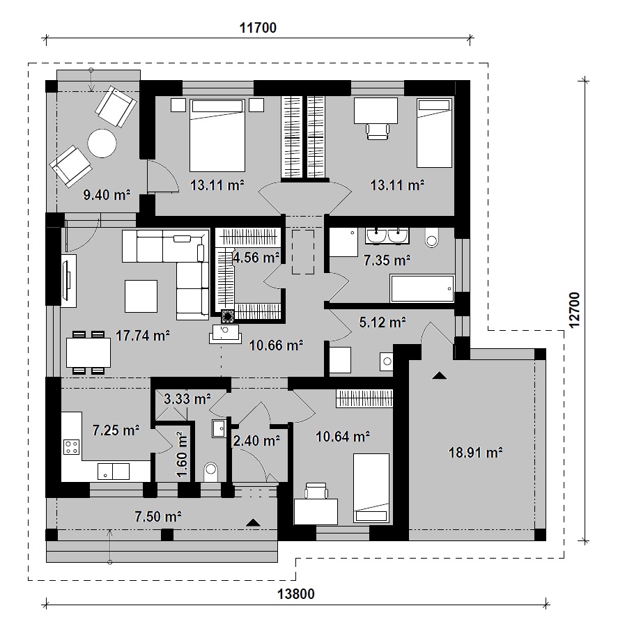
4 izbový bungalov do 115 m2
Projekt 4 izbového moderného bungalovu pre 4 5 člennú rodinu s čiastočne zastrešenou terasou
| Počet osôb: | 4-5 |
|---|---|
| Obytné miestnosti: | 4 |
| Úžitková plocha: | 96,9m2 |
| Obytná plocha: | 61,85m2 |
| Zastavaná plocha s terasou: | 159.1m2 |
| Výška hrebeňa strechy od 0,00: | 0,00: 5,54m |
| Orientácia hlavného vstupu: | V |
Tento bungalov je určený na komfortné bývanie 4 až 5 člennej rodiny. Dom ponúka zastrešenú terasu a zastrešené parkovacie státie. V projekte sa nachádza 2x kúpeľňa a priestranný šatník. Celý dom zastrešuje valbová strecha s 24° sklonom.
Naše referencie


Projekt 4 izbového moderného bungalovu pre 4 5 člennú rodinu s čiastočne zastrešenou terasou

Klasický 4 izbový bungalov s dvomi kúpeľňami, parkovacím státím a priestranným šatníkom.


Projekt 5 izbového priestranného bungalovu s terasou, ktorý je vhodný na užšie pozemky a zložitejšie terény.


Rozmerovo menší projekt 3 izbový bungalov určený pre 3 alebo 4 člennú rodinu.